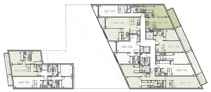
Pisos 6 - 7
RONCHAMP
Romchamp es una propuesta única en Pocitos que reúne confort, ubicación privilegiada y facilidad de acceso.







Torre Cavia
Torre Av. Brasil/span>
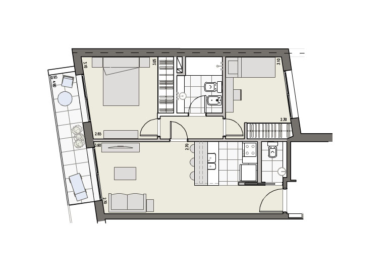
Las medidas, superficies y proporciones expresadas son aproximadas, y han sido volcadas sólo a fines ilustrativos. Las definitivas surgirán de los planos de subdivisión.
© 2013
Av. Brasil 2700 - info@ronchamp.com.uy
Perspectivas artísticas del emprendimiento. El mobiliario y la decoración fueron incluidos a mero título ilustrativo y no forman parte del contrato. Material sujeto a alteraciones.